

Für Familie mit Kind: hochwertig ausgestattete 3-ZW mit Südbalkon in gesuchter Stadtlage
Objektbeschreibung
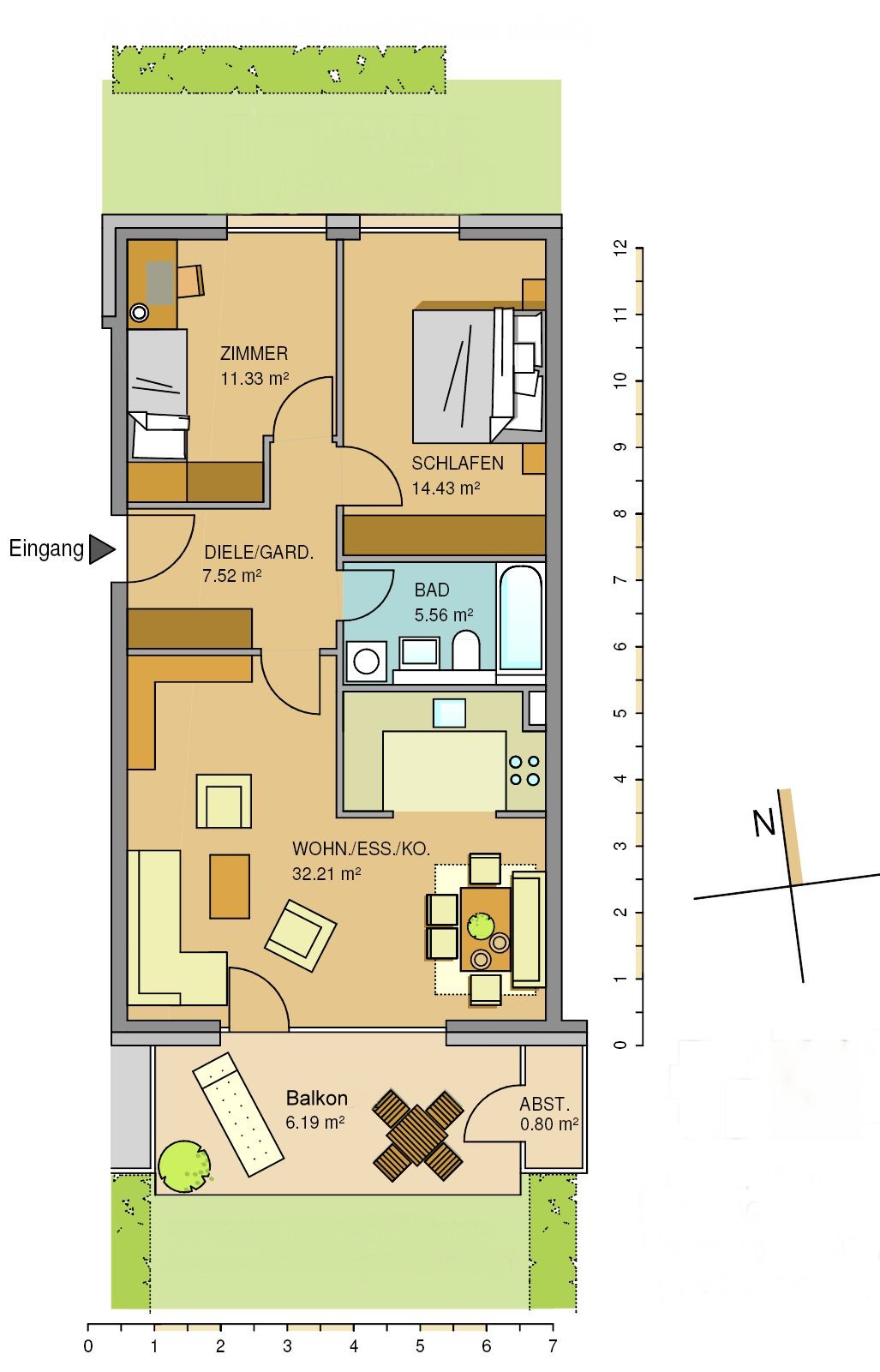
Ich kann Ihnen eine Obergeschosswohnung mit Südbalkon in einem neuen Wohnhaus zur Vermietung anbieten. Eine auch für Rollstuhlfahrer geeignete Rampe erschliesst den Zugang zum Hauseingang. Mit dem Aufzug oder über das modernes Treppenhaus gelangen Sie zur Wohnung. Der praktische Grundriß bietet viel Platz zum Leben und Genießen. In der Wohnung empfängt Sie ein Flur, der genügend Raum für eine Garderobe bietet. Vom Flur aus gelangt man in alle Räume. 2 Schlafräume, Wannenbad, ein geräumiger Wohn-/Essbereich und die halboffen gestaltete Küche bieten viel Platz zum Leben. Abgerundet wird diese attraktive Wohnung durch den grossen überdachten Balkon in Südlage. Ein praktischer Abstellraum für die Gartenmöbel befindet sich auf dem Balkon. Der Grundriss und das Wohnungsvideo sind beigefügt.
Objektausstattung
Bereits von aussen empfängt Sie ein modernes und edles Anwesen. Im Haus setzt sich dieser Eindruck fort. Vom vorgehängten Treppenhaus zweigen auf jeder Etage mit Türen verschlossene Zwischenflure ab, die die 3 Wohnungen der Etage erschließen. Dadurch werden Lebensgeräusche der Umwelt und des Hauses von den Wohnungen ferngehalten. Der Aufzug befindet sich hinter dem Treppenhaus und fährt auch das Kellergeschoß und die Tiefgarage barrierefrei an. Alle Fenster sind 3-fach verglast und verfügen über Rolläden. In der Wohnung werden Massivparkett und grossformatige Fliesen verbaut. Anschlüsse für TV, Radio oder Telefon sind vorhanden. Auch im modernen Wannenbad wurde die Ausstattung entsprechend gewählt Badewanne, moderner Waschtisch, dazu passende Armaturen, Wärmekörper für Handtücher und Platz für die Waschmaschine / Trockner. Im Untergeschoß befindet sich das Kellerabteil, ein Trockenraum, der Fahrradkeller, Müllraum sowie die Tiefgarage mit zugeordnetem Stellplatz. Ein allgemeiner Spielbereich für Kinder gehört zum Wohnhaus.
Die Einbauküche des Vormieters steht zur Übernahme an.
Objektlage
Das Rieselfeld ist der aufstrebende Stadtteil im Freiburger Süd-/Westbereich. Dieses neue Anwesen steht am Rand der Bebauung und ist mit öffentlichen Verkehrsmitteln oder dem Auto bequem erreichbar. Die Straßenbahn verbindet die Freiburger Altstadt bzw. Universität in einer Fahrtzeit von ca. 15 Minuten. Geschäfte des täglichen Bedarfs liegen im Nahbereich und große Einkaufsmärkte sind wenige Fahrradminuten entfernt. Freizeiteinrichtungen, Sportparks und Badeseen sind in wenigen Minuten mit dem Rad bequem erreichbar. Jogging, Inliner- oder Radtour beginnen Sie direkt am Haus.
Sonstiges
Alle in diesem Angebot enthaltenen Angaben, Abmessungen und Preisangaben beruhen auf Angaben des Verkäufers oder Vermieters. Der Makler übernimmt hierfür keine Haftung. Die Wohnung eignet sich besonders für eine Familie mit einem Kind. Ein längerfristiges Mietverhältnis wird gewünscht. Bitte geben Sie bei Ihrer aussagekräftigen Mailanfrage die Festnetznummer mit Zeiten Ihrer Erreichbarkeit an oder versuchen uns am besten gegen 08.00 oder 20.00 Uhr unter +49-(0)7663-99526 telefonisch zu erreichen. Beachten Sie bitte auch unsere anderen Angebote.