

-reserviert- 3-ZW mit 2 Balkonen in ruhiger, zentraler Freiburger Wohnlage
Objektbeschreibung
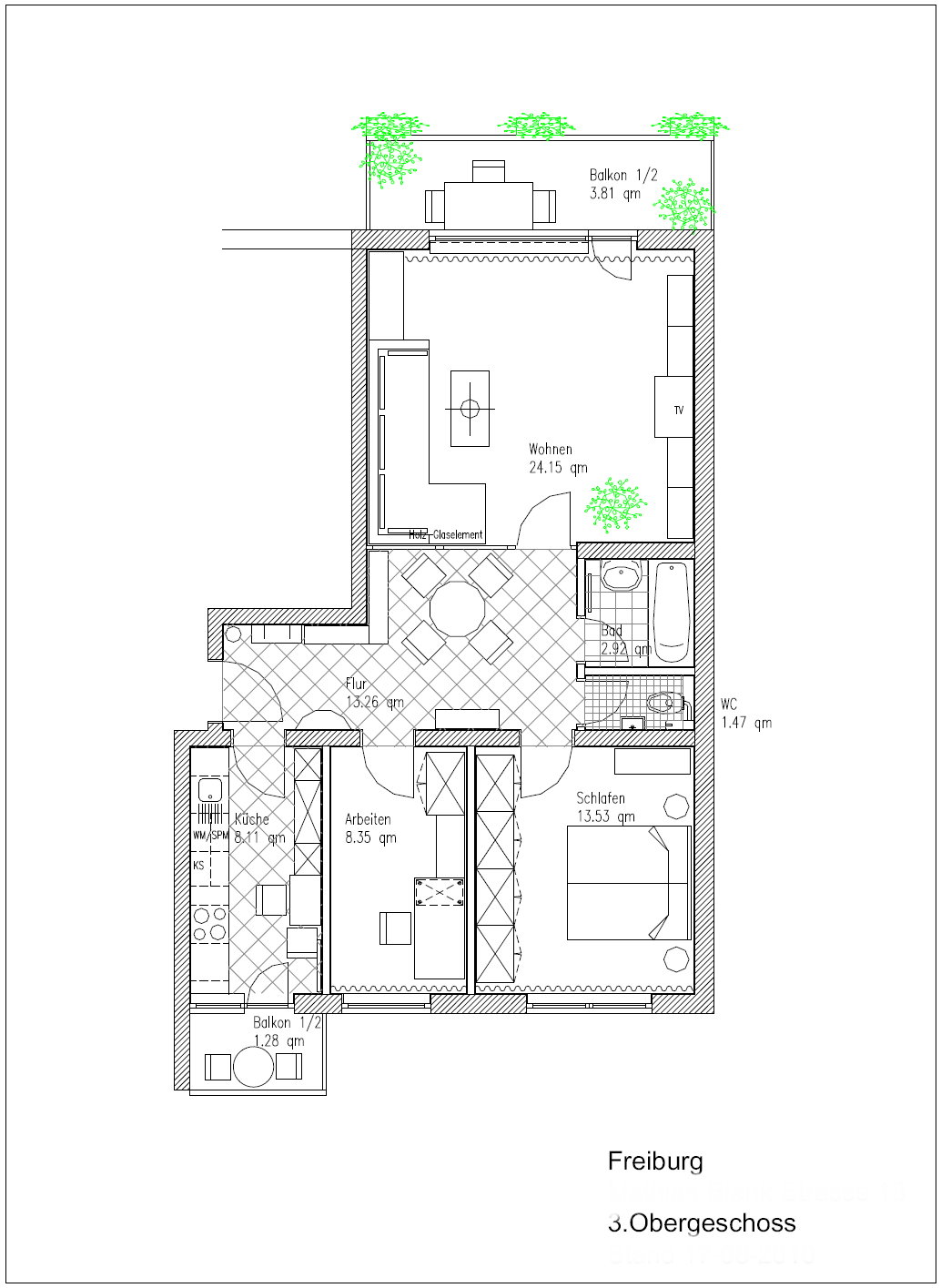
In einer ruhigen Seitenstraße liegt diese gepflegte Wohnanlage mit insgesamt 6 Wohnhäusern und 74 Wohneinheiten. Die Anlage wurde ständig saniert und auf moderne Technik umgestellt. Die gesamte Fernsehanlage wurde vor wenigen Jahren auf digitalen Kabelempfang umgestellt. Die Balkone der Anlage wurden saniert und derzeit wird die Wärmeversorgung (Heizung und Warmwasser) auf Fernwärme umgerüstet. Der Anschluss wird im Sommer 2026 durchgeführt. Die zu verkaufende Wohnung liegt im 3. OG. Die Wohnung umfasst drei Räume, eine geräumige Wohndiele sowie ein modernisiertes Bad mit Wanne (Duschabtrennung), ein separates WC und zwei Balkone (einer vor der Küche, der Südbalkon vor dem großen Wohnzimmer). Ein geräumiges Kellerabteil ist der Wohnung zugeordnet. Die große im Süden vor dem Haus liegende Wiesenfläche steht allen Anwohnern zur Verfügung. Ein Grundriss ist beigefügt.
Objektausstattung
Erneuerungen/Modernisierungen:
Fenstererneuerung 2001
Fernsehempfangsverkabelung erneuert mit neuer Kabelempfangstechnik ausgerüstet 2014
Balkonsanierung 2021
Umrüstung der Aufzüge auf aktuelle Technik/Sicherheitsaspekte 2021
Vorbereitung einer E-Ladestation auf dem Grundstück der Wohnanlage
Umrüstung auf Fernwärme 2026, daher derzeit erhöhtes Wohngeld (Ansparung)
Küche, Diele, Bad und WC sind mit hellen Fliesen belegt. Im großen Zimmer ist Parkett und in den beiden anderen Räumen pflegeleichtes PVC verlegt. Ein kleiner Balkon liegt vor der Küche und der große Südbalkon umfaßt die gesamte Breite des Wohnzimmers und ist zum Garten hin in Südlage ausgerichtet. Treppenhausreinigung und Winterdienst werden durch Hausmeister und Reinigungsfirma vorgenommen. Im Keller steht ein großen Wasch- und Trockenraum mit Münzwaschmaschinen und
-Trockner zur Benutzung bereit. Die Müllentsorgung findet über große Container statt.
Objektlage
Dieser Teil der Stadt wurde Mitte der 70er Jahre erbaut, um die bereits damals vorhandene Wohnungsknappheit für neu nach Freiburg ziehende Landes- und Bundesbeamte zu verringern.
In einer ruhigen Seitenstraße steht diese Wohnanlage mit vier Vollgeschossen plus Attikaetage. Geschäfte des täglichen Bedarfs, Ärzte, Apotheke und auch größere Supermärkte sind fast vor der Haustür oder in wenigen Gehminuten zu erreichen. Der Stadtbus hält in sehr naher Entfernung zum Haus, die Straßenbahn ist in etwa 6 Gehminuten erreichbar. Mit dem Fahrrad benötigt man etwa 12 Minuten bis zur Universität bzw. ins Stadtzentrum.
Sonstiges
"Alle in diesem Angebot enthaltenen Angaben, Abmessungen und Preisangaben beruhen auf Angaben des Verkäufers und Bauträgers. Der Makler übernimmt hierfür keine Haftung."
Die Wohnung ist an langjährige Mieter vermietet. Die derzeitige Jahresmietertrag beträgt 8.664 €. Bei Ihrer aussagekräftigen Mailanfrage geben Sie bitte die Festnetznummer mit Zeiten Ihrer Erreichbarkeit an oder versuchen uns am besten ab ca. 19.00 Uhr unter +49-(0)7663-99526 telefonisch zu erreichen.
Beachten Sie bitte auch unsere anderen Angebote.