

-reserviert- Ruhige, innenstadtnahe Maisonettewhg mit Ausblick, Balkon, 2 Bädern und Gäste-WC
Objektbeschreibung
In sehr ruhiger, bevorzugter Wohnlage, in Lauflage zur Freiburger Altstadt, steht eine Maisonettewohnung zur Neuvermietung an. Der Vermieter bietet ein langfristiges Mietverhältnis, idealerweise für Mieter ab mittleren Alters.
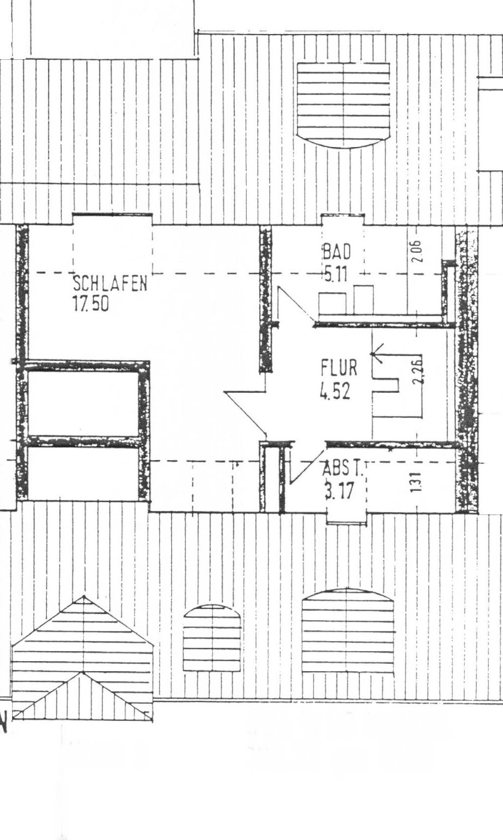
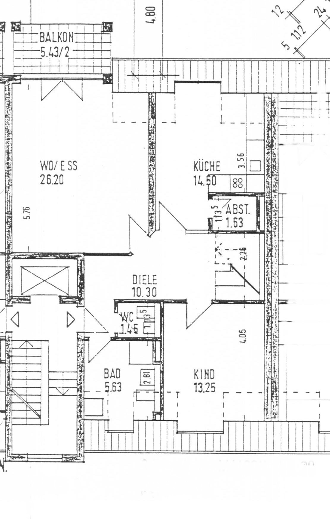
Im Dachgeschoss eines Mehrfamilienhauses befindet sich die zu vermietende Wohnung. Über Aufzug oder ein freundliches Treppenhaus gelangen Sie in die Wohnung. Von der zentralen Diele zweigen in der unteren Ebene der geräumige Wohnraum mit SW-Balkon und Blick in die Weinberge des Schlossberges, die Wohnküche mit EBK und integrierter Speisekammer, ein Schlafraum, das Tageslicht-Duschbad mit WC und das zusätzliche separate Gäste-WC ab. In der oberen Etage befindet sich ein weiterer Schlafraum, das Wannenbad mit Fenster und ein Abstellraum.
Ein geräumiges Kellerabteil gehört zur Wohnung. In der Tiefgarage ist ein ebener Stellplatz zugeordnet.
Derzeit wird die Wohnung noch bewohnt, daher sind noch keine weiteren Bilder verfügbar. Besichtigungen sind nach Absprache möglich.
Objektausstattung
Wohnraum, alle Schlafräume und Diele mit Parkett.
Tageslicht Wannen-,zusätzliches Duschbad und Gäste-WC mit weißer Sanitärkeramik und hellen Fliesen ausgestattet.
- Küche mit Marmorfliesen; Übernahme der EBK vom Vormieter
- derzeit werden die Anwesen direkt mit Glasfaserkabel versorgt; 1.000 MBit/s werden verfügbar sein (Übergangsweise bis 250 M/Bit/Sekunde)
- SW-Balkon mit Ausblick
- geräumiges und überhohes Kellerabteil
- ebener TG-Stellplatz in gut anfahrbarer Tiefgarage
- Fahrradabstellraum in Tiefgarage
- allgemeiner Trockenraum mit Münz-Wäschetrockner im UG
Objektlage
Die zu vermietende Wohnung befindet sich in sehr ruhiger Wohnlage mit Ausblick in der Oberau, unweit der Freiburger Innenstadt. Diese ist zu Fuß in etwa 10 Gehminuten erreichbar.
Die Bergwaldgebiete sind direkt ab Haustüre zu Fuß oder mit dem Fahrrad erreichbar. Die nahegelegene Dreisam lädt ebenso zu Spaziergängen oder im Sommer zur Abkühlung ein. Die nahegelegenen Straßenbahnhaltestellen sind ebenfalls schnell zu erreichen. Mit dem ZO am alten Meßplatz steht als Alternative neben der Innenstadt ein grösseres Einkaufszentrum mit einer Vielzahl von Geschäften zur Verfügung.
Sonstiges
"Alle in diesem Angebot enthaltenen Angaben, Abmessungen und Preisangaben beruhen auf Angaben des Verkäufers oder Vermieters. Der Makler übernimmt hierfür keine Haftung."
Der Vermieter bietet ein langfristiges Mietverhältnis, idealerweise für Mieter ab mittlerem Alter (Single, Paar, Familie mit max. 1 Kind).
Wenn Sie zum Mieterkreis gehören geben Sie bitte bei Ihrer aussagekräftigen Mailanfrage mit Zeiten Ihrer Erreichbarkeit an oder versuchen Sie uns telefonisch zu erreichen, am besten gegen 08.00 oder 18.00 Uhr im Büro oder tagsüber bis 19.00 Uhr unter +49-(0)163-4193536.
Beachten Sie bitte auch unsere anderen Angebote.