

DHH in ruhiger Aussichtslage für Familie (keine Tiere)
Objektbeschreibung
Die angebotene Doppelhaushälfte von 1997 befindet sich in leichter Höhenlage von St. Georgen. Von hier aus haben Sie einen Blick über Freiburg, die Breisgauer Bucht, über Tuniberg und Kaiserstuhl bis hin zu den Vogesen. Das Haus wurde als Mehrgenerationenhaus konzipiert und lässt sich sehr variabel nutzen. Vom zentralen Treppenhaus aus zweigen die einzelnen Räume bzw. Einheiten mit Wohnungstür ab.
Im Erdgeschoos liegen Heizraum (Gas-Zentralheizung), Abstellraum und ein Zimmer.
Im Obergeschoss befindet sich Küche, Wohnraum, halboffenes Esszimmer, WC sowie Erdterrasse und die Gartenebene.
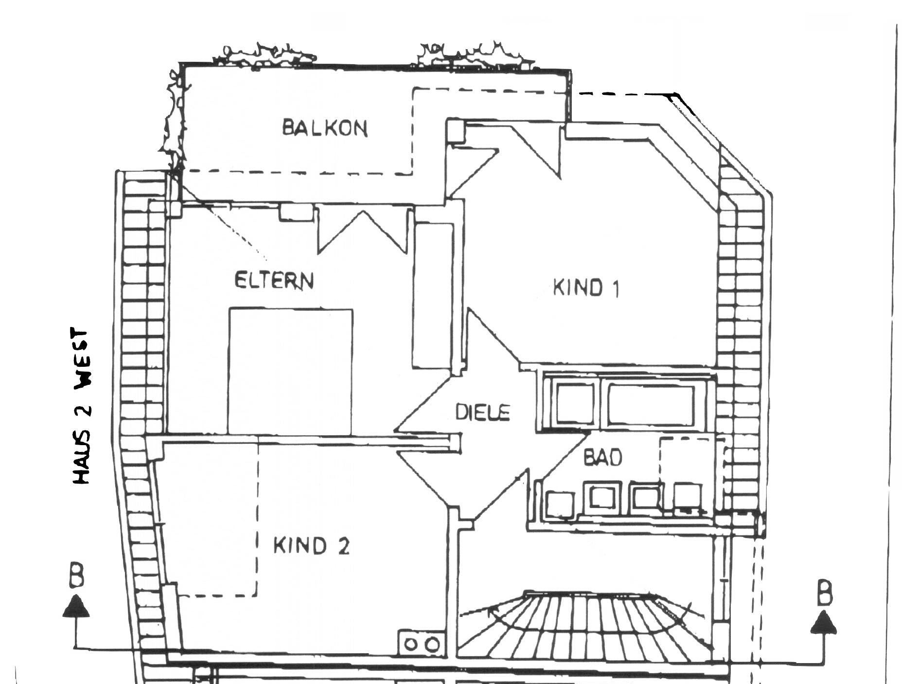
Im Dachgeschoss 1 befinden sich 3 Schlafräume, grosser Balkon in Aussichtslage und ein Tageslichtbad mit Wanne und Dusche.
Im Dachgeschoss 2 ist ein weiteres Zimmer, grosser Balkon und einem kleinen Duschbad vorhanden. Den Ausblick von hier werden Sie geniessen.
Objektausstattung
Im Wohn-/Essraum ist Parkett verlegt. Dort besteht auch die Möglichkeit für einen Kaminofenanschluß. Die Schlafräume im 1. OG sind mit pflegeleichtem Laminat belegt. Küche, Nassräume, der Raum im Erdgeschoss und das obere Apartment sind hell gefliest. Das Treppenhaus ist mit Steinboden (Travertin) ausgestattet. Die Fenster und Balkontüren bestehen aus Kunststoff und haben Rolläden (mit Ausnahme der Dachlegefenster und der Giebelverglasung im DG 2). Die Balkone sind gefliest und die Terrasse ist mit Platten belegt. Im Haus sind 2 Badezimmer mit WC und 1 Gäste-WC vorhanden. Die Gartenfläche ist in 2 Ebenen aufgeteilt und bietet die Möglichkeit vielfältiger gestalterischer Möglichkeiten. DSL ist derzeit bei der Telekom mit bis zu 175MBit/s max. Download und 40 MBit/s max. Upload verfügbar. Der DSL-Anschluss ist in Vorbereitung.
Objektlage
Unweit dem zentralen alten Ortskern von Freiburg St. Georgen befindet sich das Anwesen in unverbaubarer Aussichtslage. Erschlossen wird dieser Bereich von einer kleinen Stichstrasse. In unmittelbarer Nähe zum Haus befinden sich weitere, öffentliche Parkplätze. In wenigen Gehminuten sind Kindergarten, alle Schulen (Gymnasium 2 Gehminuten oder auch Waldorfschule), das Freibad in St. Georgen und die Stadtbushaltestelle erreicht. Ärzte diverser Fachrichungen sind in grosser Zahl vorhanden. Kleinere Geschäfte sind fussläufig, Supermärkte und andere Einkaufsmöglichkeiten mit Fahrrad oder Auto schnell erreicht. Mit dem Fahrrad gelangen Sie auch schnell in den Stadtteil Vauban und die Endhaltestelle der Strassenbahn. Ihre Jogging- oder Fahrradtour können Sie ebenfalls direkt vor der Haustür starten. Über den Haltepunkt St. Georgen sind Sie an das Fernnetz der Deutschen Bahn angebunden. Insbesondere Pendler nach Süden / Basel erreichen die Autobahn BAB A5 oder die Bundesstrasse 3 staufrei in wenigen Fahrminuten.
Sonstiges
"Alle in diesem Angebot enthaltenen Angaben, Abmessungen und Preisangaben beruhen auf Angaben des Verkäufers oder Vermieters. Der Makler übernimmt hierfür keine Haftung."
Bitte geben Sie bei Ihrer aussagekräftigen Mailanfrage Ihre Telefonnummer/n mit Zeiten Ihrer Erreichbarkeit an. Zusätzlich können Sie uns unter +49 (0)-163-4193536 erreichen.
Das Haus ist für eine Familie mit max. 3 Kindern und ohne Haustiere vorgesehen. Ein gesichertes Einkommen ist nachzuweisen. Ein längerfristiger Mietvertrag ist gewünscht.
Beachten Sie bitte auch unsere anderen Angebote.